Inicio
Servicios
Proyectos
Empresa
Contacto
English
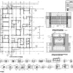
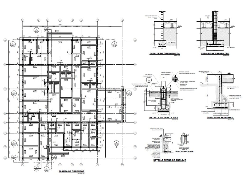
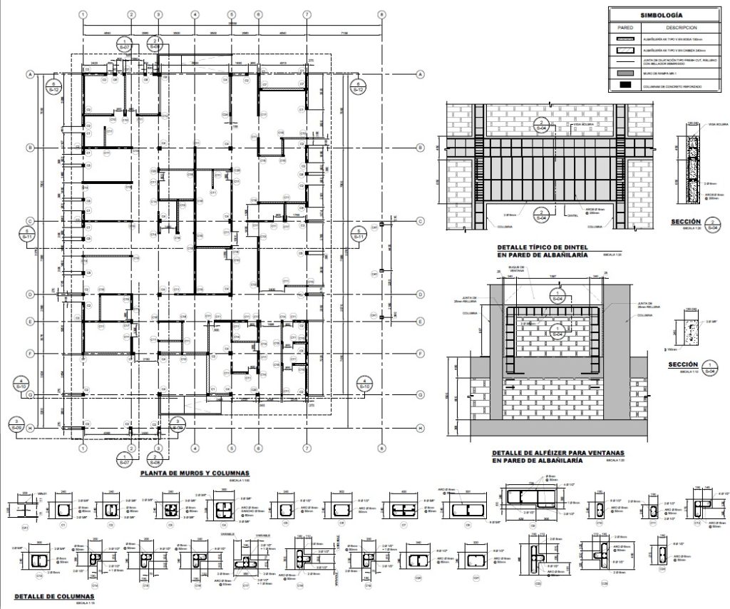
Policlínica Salveani
Cliente
JG Ingenieros Perú
Categoría
OTROS
Ubicación
Moquegua
PERU
Servicio
Planos constructivos (ingeniería estructural)
Área
900 m2
Estructura de Planta Termoelectrica Bangladesh
Planta de Tratamiento Residencial Belén
PROGRAMA DE INTERVENCION INTEGRAL TEATRO NACIONAL DE COSTA RICA
Público
ESCUELA DE ENSEÑANZA ESPECIAL SANTA ANA
Público
Planta de Tratamiento Aguas Residuales Braco
Otros
LICEO LOS ANGELES
Público
Menú